Free account required
15
Free account required
$799,000 List $799,000 Terminated
Terminated 871 days ago
600 Alex Gardner Circle, #111
· 2
· 3
· 1
· 900-999
Listing History
Buy/Sell/Terminated/Expired listing history for 600 Alex Gardner Circle, #111
Key Facts
Key facts for 600 Alex Gardner Circle, #111
Property Type
Condo, Stacked Townhouse
Parking
Underground 1 garage, 1 parking
MLS #
N6094956
Size
900-999 sqft
Basement
None
Listed on
2023-06-03
Lot size
-
Tax
$3,299.70 /yr
Days on Market
882
Approximate Age
-
Maintenance Fee
$375.87/mo Common Elements, Par...
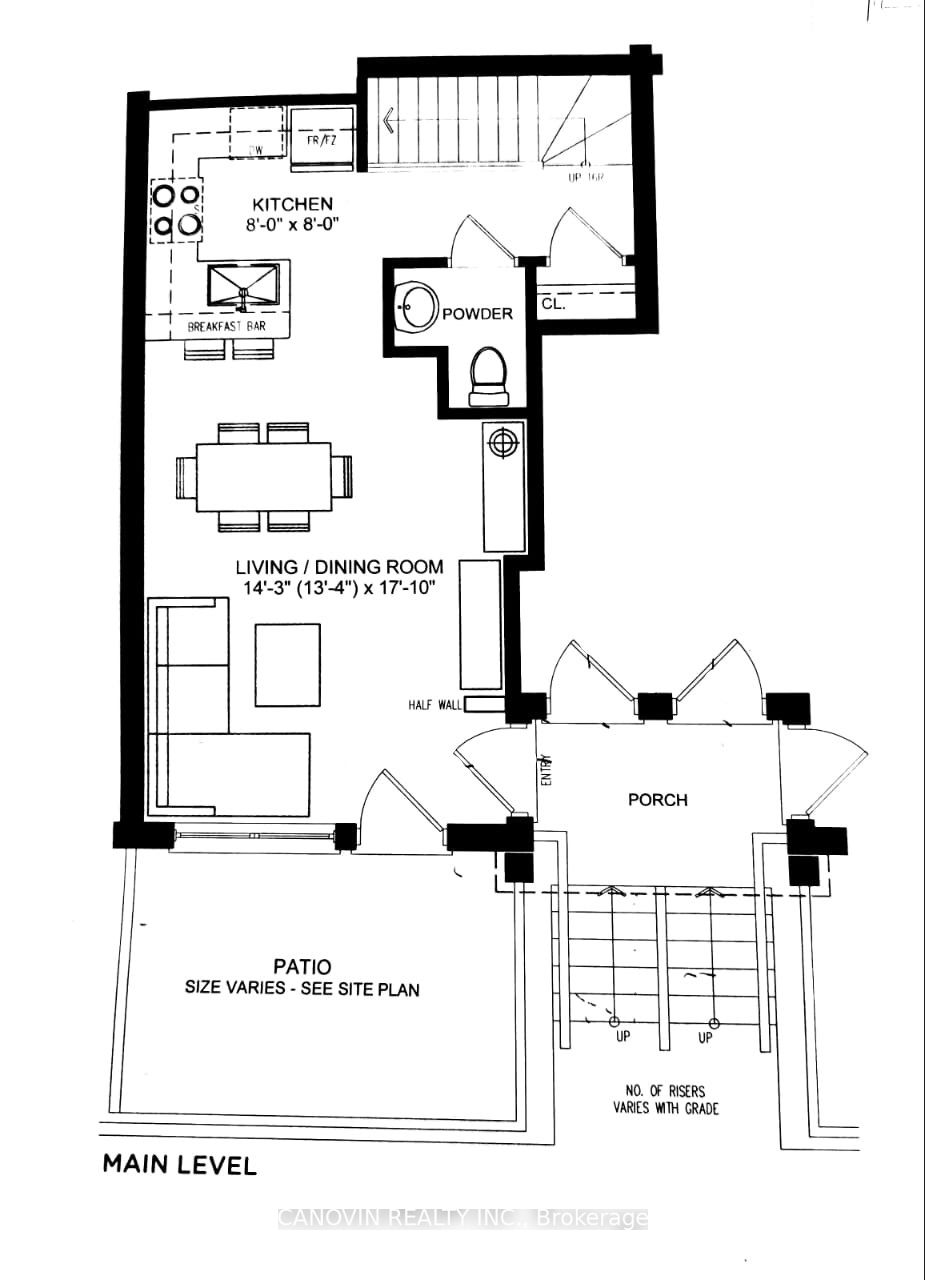
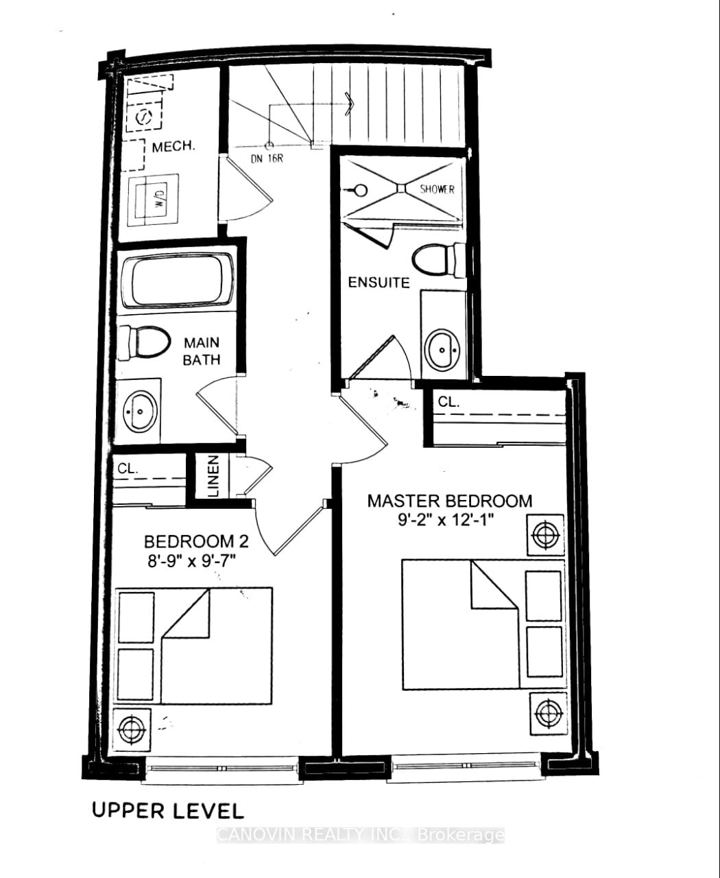
Description
Two Story Condo Town House In Highly Desired At Down Town Of Aurora. 2 Bedroom,3 Bath. Features Premium Kitchen Cabinetry, Granite Counter Tops , Heated Laminate On Main Floor. Expansive 9' Ceiling, Open Concept Dining And Living. One Parking And Locker In Underground. Visitor Parking. Easy Access T...o Go Station, Steps To Viva, Highway 404, Restaurant, Art Centres, Parks, High Ranking Schools And Much More.
Similar Properties (No results)
Room Types
Bedroom 2
Laminate, Closet, Large Window
Dimensions 9.58 x 8.76 feet
83.92 sqft
Dining Room
Laminate, Combined w/Living, Large Window
Dimensions 17.88 x 13.32 feet
238.16 sqft
Kitchen
Open Concept, Granite Counters, Backsplash
Dimensions 8.04 x 8.04 feet
64.64 sqft
Courtesy of: CANOVIN REALTY INC.